- triple family house 143
- chennai, india
- preliminary design
- motaleb architects
- client: private
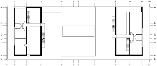
the ensemble is designed for an extended family. it visualizes the simple complexity of open and closed spaces. each family creates its own entity within the compound, embraced by the communal pieces of ribbon. the ribbon defines space through its presence, defining territory, welcoming and rejecting. the core of the scheme is filled with emptiness uniting all entities involved, and at its visual intersection stands a tree. this space of contemplation and activity becomes the centre of devotion.
| < | 1 | 2 | 3 | 4 | 5 | 6 | 7 | 8 | > |