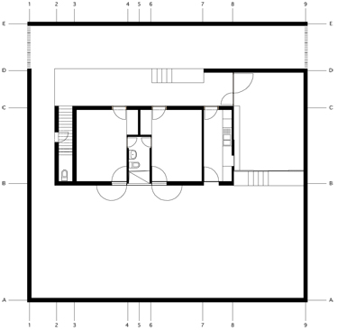
- family guest house 14L
- chittagong, bangladesh
- final design
- motaleb architects
- client: private
a house is the projection of wishes and dreams of oneself. the quality of a house depends upon the precision of articulating these. we went beyond the mere necessities and tried to capture some atmospheric moments. spaces of different shades flow from one to the next, spiraling around the coconut trees planted by the grandmother. this guest house is meant as much to be a meeting place as a retreat for our family, reminding us of our roots.
| < | 1 | 2 | 3 | 4 | > |