- halls of residence, atlantic colleges
- llantwit major, uk
- competition
- motaleb architects with rainer niemann
- client: united world colleges
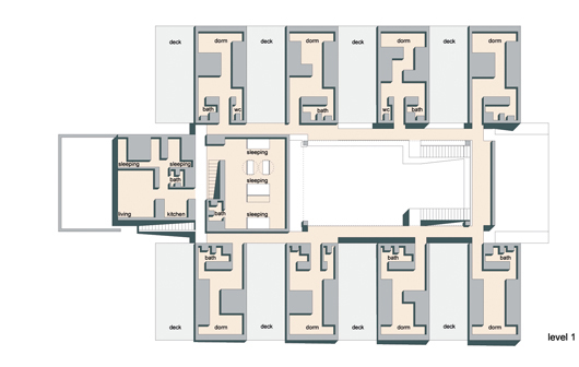
the proposal consisted of three new residential buildings housing 40 students each, with shared living spaces and common rooms. careful consideration was given to the buildings’ flexibility of the spaces and the comfort of the occupants of diverse cultural background. the urge to provide both, spaces for group interaction and personal withdrawal, lead to a spatial solution of stacked cubicles and voids on two floors. the students’ areas are gathered around the guardian teacher. the central “meeting” space allows view to the green and the sea that lay in front.
| < | 1 | 2 | 3 | 4 | 5 | 6 | 7 | > |